物件を探す
中古一戸建て
神奈川住空間
=リフォーム済み=「金沢区片吹」 大型中古邸宅
所在:横浜市金沢区片吹
交通:京急本線「金沢文庫」駅 徒歩17分
京急本線「能見台」駅 徒歩20分
価格:5,280万円(税込)
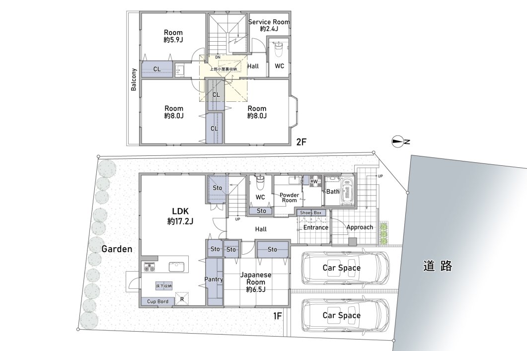
【リフォーム済み・即入居可能】≪月々のお支払い13万円台≫◎敷地面積51坪の整形地、「4SLDK+小屋裏収納+大容量パントリー+カースペース2台分」◎平成14年3月築、木造2階建て◎2世帯にも対応、ゆとりある住まい◎第一種低層住居専用地域◎静かで落ち着いた雰囲気の金沢区片吹エリア≪お気軽にお問い合わせください≫
地図
物件概要
- 所在地
- 横浜市金沢区片吹
- 交通1
- 京急本線「金沢文庫」駅 徒歩17分
- 交通2
- 京急本線「能見台」駅 徒歩20分
- 価格
- 5,280万円(税込)
- 物件種別
- 中古一戸建て
- 土地面積
- 169.37㎡(51.23坪)
- 建物面積
- 130.63㎡(39.51坪)
- 間取
- 4SLDK
- 建物構造
- 木造 2階建
- 完成
- 2002年3月
- 施工会社
- 株式会社芳枝建設
- 接道状況
- 公道 北 4.50M
- 土地権利
- 所有権
- 都市計画
- 市街化区域
- 地目
- 宅地
- 用途地域
- 第一種低層住専
- 建ぺい率
- 50%
- 容積率
- 80%
- 現況
- 空家
- 駐車場
- あり
- 引渡し時期
- 即入居可
- 取引態様
- 売主
- 小学区
- 横浜市立西柴小学校
- 中学区
- 横浜市立西柴中学校
- ガス
- 都市
- 電気
- 東京
- 水道
- 公営
- 下水道
- 下水
- 備考
- ■第1種高度地区、敷地面積最低限度あり、建築基準法第22条区域、埋蔵文化財包蔵地、土砂災害警戒区域、緑化地域、急傾斜地危険崩壊区域(一部)、宅地造成及び特定盛土等規制法、景観法 ※現況と図面が異なる場合は現況を優先します ※掲載写真の一部は、CGで家具等を配置しています。家具付き物件ではございませんのでご注意ください。
